Aluminiumfenster
von Ziegeler Bauelemente aus Ganderkesee
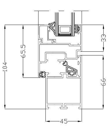
MB-45
Die MB-45 Aluminiumfenster sind für die Montage im Innenbereich bestimmt.
Das Fenstersystem ist mit renommierten Beschlägen ausgestattet. Die umfangreiche Palette von über 200-RAL Farben ermöglicht es, die Fenster zu jedem architektonischen Stil anzupassen.
STANDARDAUSFÜHRUNG:
- MACO MULTI-MATIC KS-Beschläge mit 2 Sicherheitsschließblechen mit Silber-Look-Korrosionsschutzbeschichtung für langfristigen Schutz und reibungslosen Betrieb des Beschlages
- Flügelheber (Fehlbedienungssperre - abhängig von der Höhe des Fensters)
- Mikroventilation bei Drehkippfenstern
- Scharnierabdeckungen in 3 Farben: Weiß, Silber, Braun
- Aluminium-Griff
- 2-fach-Scheiben-Paket (1 Kammer) gefüllt mit Argon, mit einem Ug Koeffizient Ug = 1,1 W/(m²K)
- Randverbund Swisspacer Ultimate (Warme Kante) als freie Wahlmöglichkeit
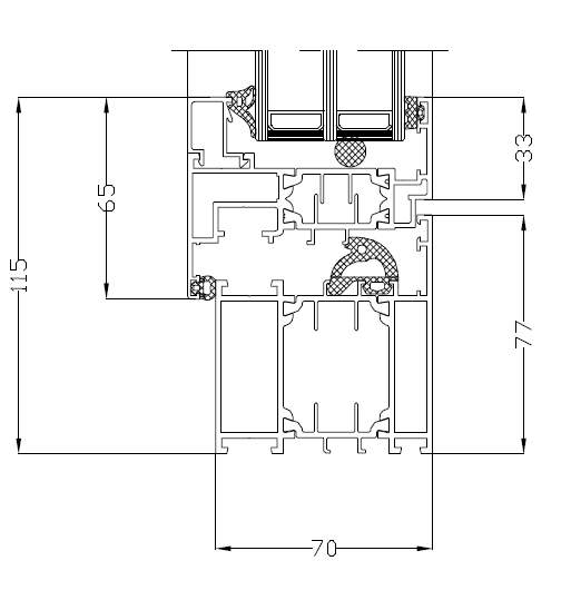
MB-70
Die MB-70 Aluminiumfenster funktionieren unter allen Wetterbedingungen perfekt.
Für die Lackqualität der Aluminiumfenster sorgt unsere eigene Pulverbeschichtungsanlage - eine der modernsten der Welt. Die MB-70 Fenster werden Ihre Erwartungen erfüllen.
STANDARDAUSFÜHRUNG:
- MACO MULTI-MATIC KS-Beschläge mit 2 Sicherheitsschließblechen mit Silber-Look- Korrosionsschutzbeschichtung für langfristigen Schutz und reibungslosen Betrieb des Beschlages
- Flügelheber (Fehlbedienungssperre - abhängig von der Höhe des Fensters)
- Mikroventilation bei Drehkippfenstern
- Scharnierabdeckungen in 3 Farben: Weiß, Silber, Braun
- Aluminium-Griff
- 2-fach-Scheiben-Paket (1 Kammer) gefüllt mit Argon, mit einem Ug Koeffizient Ug = 1,1 W/(m²K)
- Randverbund Swisspacer Ultimate (Warme Kante) als freie Wahlmöglichkeit
- 1 EPDM-Dichtungen + 1 zentrale geschäumte EPDM Dichtung, Dichtungen schwarz
- Farbe RAL MATT: weiß (9016). Anthrazitgrau (7016)
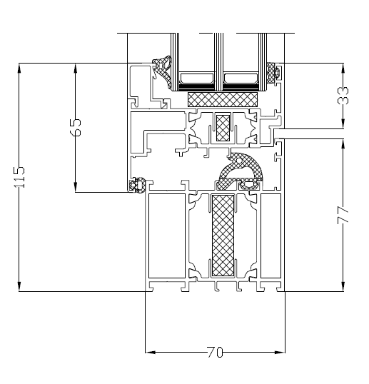
MB-70HI
Die mit diesem System hergestellten Aluminiumfenster können sowohl in Gebäuden als auch in Aluminiumfassaden verwendet werden. Die leichte und robuste Konstruktion sorgt für hohen Benutzerkomfort über Jahre hinweg.
STANDARDAUSFÜHRUNG:
- MACO MULTI-MATIC KS-Beschläge mit 2 Sicherheitsschließblechen mit Silber-Look- Korrosionsschutzbeschichtung für langfristigen Schutz und reibungslosen Betrieb des Beschlages
- Flügelheber (Fehlbedienungssperre - abhängig von der Höhe des Fensters)
- Mikroventilation bei Drehkippfenstern
- Scharnierabdeckungen in 3 Farben: Weiß, Silber, Braun
- Aluminium-Griff
- 2-fach-Scheiben-Paket (1 Kammer) gefüllt mit Argon, mit einem Ug Koeffizient Ug = 1,1 W/(m²K)
- Randverbund Swisspacer Ultimate (Warme Kante) als freie Wahlmöglichkeit
- 1 EPDM-Dichtungen + 1 zentrale geschäumte EPDM Dichtung, Dichtungen schwarz
- Farbe RAL MATT: weiß (9016). Anthrazitgrau (7016)
MB-86N SI
Die MB-86N SI Aluminiumfenster zeichnen sich durch ihre hervorragenden Wärmedämmungseigenschaften und ihr modernes Design aus. Eine Auswahl von mehr als 200 RAL Farben und viele zusätzliche Optionen ermöglichen eine vollständige Personalisierung der Fenster.
Ein weiterer Vorteil dieses Fenstersystems ist, dass es mit Smart Home-Lösungen ausgestattet werden kann.
STANDARDAUSFÜHRUNG:
- MACO MULTI-MATIC KS-Beschläge mit 2 Sicherheitsschließblechen mit Silber-Look- Korrosionsschutzbeschichtung für langfristigen Schutz und reibungslosen Betrieb des Beschlages
- Flügelheber (Fehlbedienungssperre - abhängig von der Höhe des Fensters)
- Mikroventilation bei Drehkippfenstern
- Scharnierabdeckungen in 3 Farben: Weiß, Silber, Braun
- Aluminium-Griff
- 2-fach-Scheiben-Paket (1 Kammer) gefüllt mit Argon, mit einem Ug Koeffizient Ug = 1,1 W/(m²K)
- Randverbund Swisspacer Ultimate (Warme Kante) als freie Wahlmöglichkeit
- 1 EPDM-Dichtungen + 1 zentrale geschäumte EPDM Dichtung, Dichtungen schwarz
- Farbe RAL MATT: weiß (9016). Anthrazitgrau (7016)








